Marion, SD (2023)
Marion is a classic South Dakota small town. They’ve got a post office, a bank, hardware store, fire station, and a bar called Bud’s on the main drag. Oh, and a public school in need of a plan.
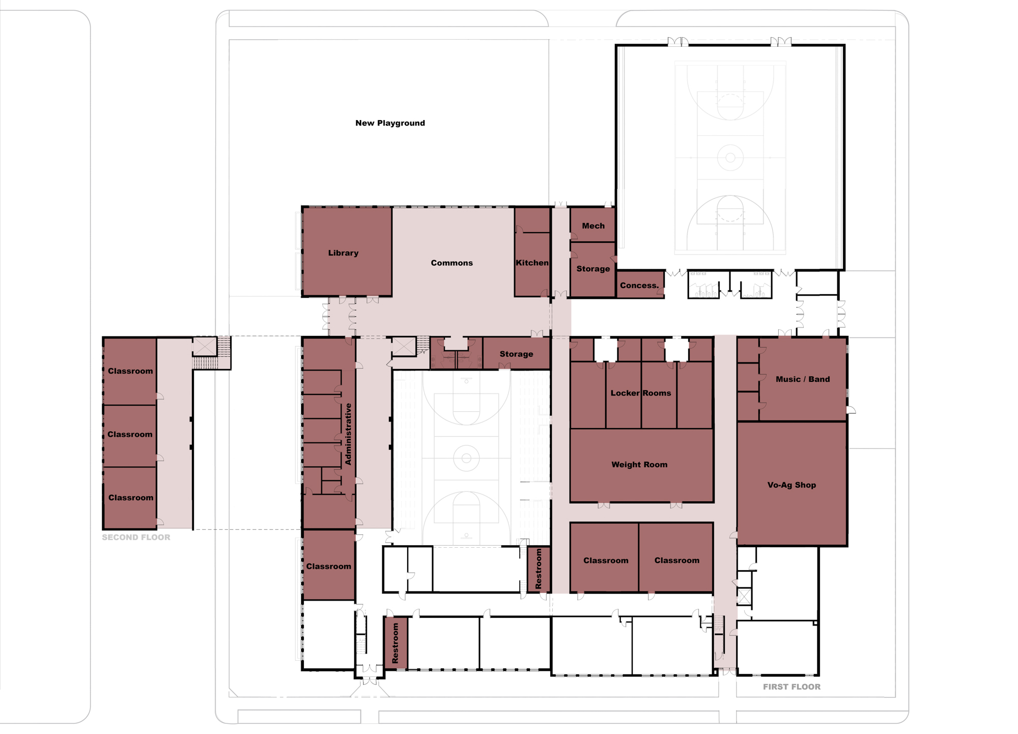
We see this all the time. A hodgepodge of additions tacked on to an old original structure. In Marion’s case, there’ve been six additions over the school’s 110-year history. Each made sense on its own, but the school as a whole? Broken circulation, a wide range of dated finishes, and a mess of utilities.
The good folks at Marion Public School invited us to help them figure out what’s next. They knew they needed to update some classrooms, regulate indoor air temps, add some locker rooms, and create a proper commons (students were eating lunch in the old gym). We helped them see that circulation was a problem too, as students were forced to walk through that same old gym to access a large chunk of the school.
With circulation as our driver, we proposed a 3-phase plan for the District to tackle over the next 10-15 years. The plan creates common-sense circulation routes, brings dated classrooms up to par, adds a proper commons, and carves out a true athletics wing with a new weight room and locker rooms. Phase 3 brings the shop to the main building and repurposes the existing standalone shop square footage for a new playground.
We’re hammering away on Phase 1 now, improving spaces in the 1939, 1958, and 1983 additions.






